2957106

EZ Pull Sub-Assembly Kit and Installation Procedures

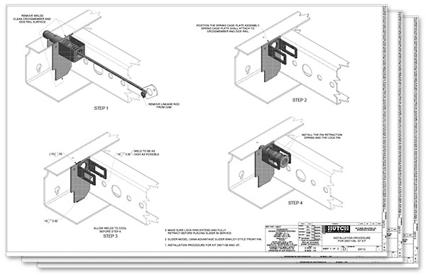
To download the kit drawing or installation procedures for this service kit, please click on the appropriate link below. Refer to Drawing 29713 for Installation Procedures.

Sub-Assembly Kit Drawing

Hutchens Industries EZ Pull Sub Assembly 29571

Installation Procedures

Hutchens Industries EZ Pull Installation 29713